Wirtschaft Lamm

Seit Mai 2025 stehen die frisch sanierten Wirtschaftsräume für private Feiern und Veranstaltungen zur Verfügung. Sie können für Gesellschaften mit bis zu 45 Personen gemietet werden und bieten damit einen stilvollen Rahmen für verschiedenste Anlässe in einem einzigartigen, denkmalgeschützten Ambiente.

Die Sanierung umfasste außerdem die Modernisierung der Küche und der Gasträume sowie das Schaffen von neuen Sanitäranlagen. Durch diese Maßnahmen wurde nicht nur der historische Charme der Räume gesichert, sondern auch eine zeitgemäße und nachhaltige Nutzung ermöglicht.

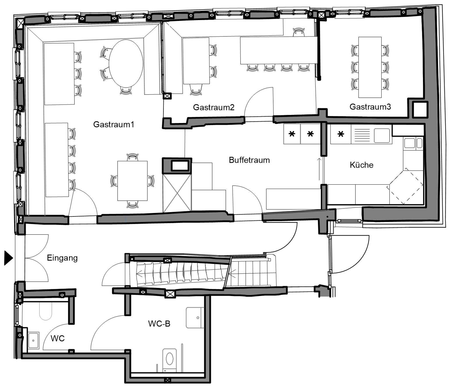
Grundriss eines Gebäudes mit mehreren Räumen, darunter drei Gasträumen, eine Küche, einen Buffetraum, einen Eingangsbereich, eine Toilette und einen Gemeinschafts-WC-Bereich.
Ein Esszimmer mit Holztischen und Stühlen, große Fenster, helle Wände und Parkettboden, mit Garderobenleiste an der Wand.